ARTICLE AD
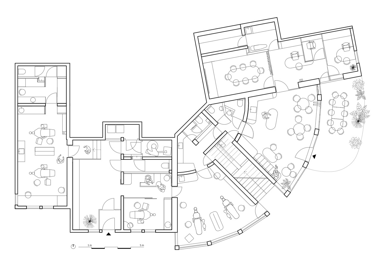
Projekti lahko, prav tako kot preostale stvari, čez leta rastejo in se razvijajo. Arhitektka Janja Štibernik je v obdobju, dolgem 11 let, izdelala projekt, ki je postopno preoblikoval funkcionalnost in videz ambulante Zoboestetika. Zoboestetika, estetsko zobozdravstvo in ortodontija, je zasebna dentalna klinika, ki s pomočjo sveže, izvirne podobe danes ponuja drugačno izkušnjo, kot smo jo vajeni v običajnih zdravstvenih ustanovah. Janja Štibernik je s premišljeno zasnovo ustvarila prostore, ki izražajo profesionalnost in estetsko čistost ter vključujejo elemente vizualne identitete podjetja.
Projekt se je razvijal skladno s širitvijo in razvojem ordinacije. Avtorica večfaznost projekta notranjega oblikovanja vidi kot prednost, saj omogoča smiselno dodajanje programov glede na dejanske potrebe uporabnikov, ki so bile ugotovljene skozi leta delovanja. »Če bi celoten program načrtovali že v prvi fazi, bi se projekt zagotovo razvijal drugače – za nekatere vsebine bi zmanjkalo prostora, za druge pa bi ga bilo preveč,« meni Janja Štibernik. V ospredju projekta je bila predvsem logična uporaba prostora. »Veliko je bilo razmišljanja v smeri udobne in jasne souporabe. Vse ostalo pa je nadgradnja. Uporaba barv, materialov. Predvsem pa prave kompozicije opreme in bolj poetično: poudarkov v prostoru – da je izkušnja za vsakega uporabnika edinstvena.«
Leta 2014 so v studiu zasnovali zračno, veliko čakalnico, ki z elegantnostjo opominja na resnost programa, kljub temu pa vseeno daje občutek dnevne sobe in ordinacije. Zaokrožena ograja vodi iz čakalnice v ambulanto I. Tu se že v prvotni zasnovi v sterilnem belem prostoru pojavi igriv element roza zobozdravniškega stola, ki je bil tudi izhodišče za oblikovanje celostne grafične podobe, ki jo je prav tako zasnovala Janja Štibernik. Leta 2019 je sledil nov projekt, v sklopu katerega so zmanjšali eno od ambulant in s tem pridobili prostor za novo recepcijo. Obenem so ordinacijo razširili z dodatno ambulanto, ki se smiselno navezuje na obstoječe prostore tudi s ponovno uporabo značilnih roza zobozdravniških stolov. V zadnji fazi, leta 2021, so ordinacijo še dodatno razširili. Prostor nekdanjega gostinskega lokala so preuredili v dve pisarni, sejno sobo, pralnico, arhiv in lounge prostor za zaposlene. Ta deluje kot pika na i celotnega projekta – premišljen zaključek, zasnovan z mislijo na dobro počutje zaposlenih. S svojo barvno paleto, materiali in prostorsko kompozicijo jasno izraža svojo drugačno, bolj sproščeno namembnost.
Arhitektka povzame: »Celota je zelo prepletena – ravno zato so prostori načrtovani racionalno, z jasnimi določitvami, kje naj prostor resnično zadiha in kje nekoliko manj, saj za to ni dodatne kvadrature.« Oblikovanje prostorov in izbira materialov izhajata iz programa. Ambulante imajo značilno sterilno belo barvo, medtem ko so si v čakalnicah in lounge prostoru, zaradi bolj sproščenega značaja vsebin, lahko privoščili nekaj barvnih in materialnih poudarkov, ki odstopajo od osnovne sheme in drzno nadgradijo celoto. »To je bilo tudi eno ključnih vodil pri oblikovanju: ustvariti estetske, dovršene, nekoliko igrive, drzne in hkrati udobne prostore klinike.«



Ime projekta: Zoboestetika
Arhitektura: Alter arhitektura & design, Janja Štibernik, m.i.a.
Leto izvedbe: 2014, 2019, 2021
Površine: 215 m²
Foto: Ana Skobe
Napisala: Nina Dolar

5 days ago
6












English (US)